Toekomstbeeld van Groenenhoek, een van de acht deelparken van Ringpark Groene Vesten

Groenenhoek

Groenenhoek krijgt een natuurlijke speelzone met vlonderpaden, een trapveldje en wadi’s om water op te vangen.

Groenenhoek is een van de acht deelparken van het Ringpark Groene Vesten.

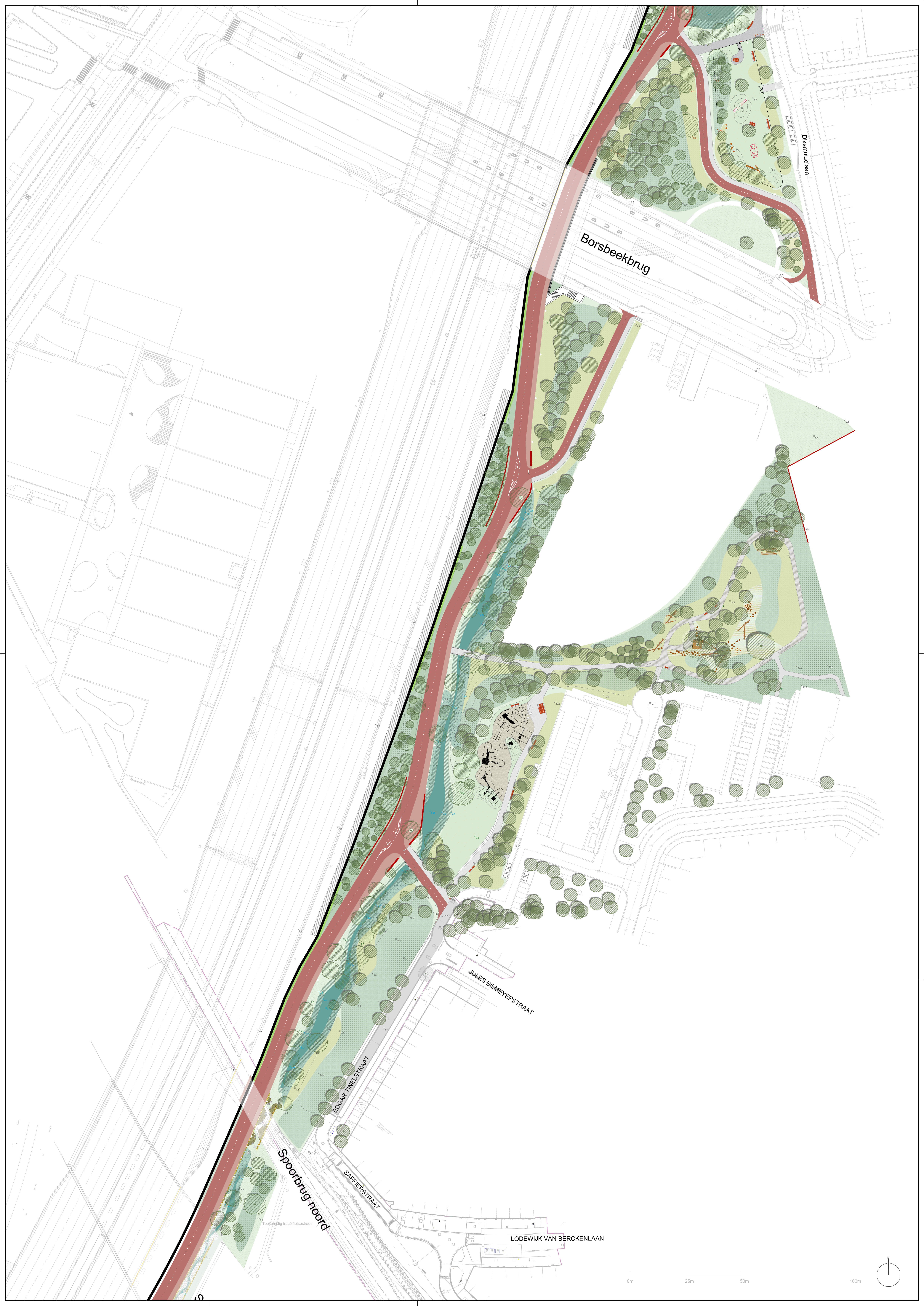
Het ligt tussen de spoorbruggen en de Borsbeeksebrug. Het ontwerp van het park verwijst subtiel naar de vroegere vesten, met gebogen vormen en lage muurtjes. Het glooiend terrein is ideaal om er wadi’s aan te leggen en water te bufferen.

Een door de stad recent aangekocht bosje tussen de gebouwen wordt ingericht als een natuurlijke speelzone met vlonderpaden, en paden naar het dienstencentrum De Meere. De bestaande speeltuin en het trapveldje aan de Corneel Jaspersstraat worden vernieuwd.

Toekomstbeeld van de speelzone in Groenenhoek, een van de acht deelparken van Ringpark Groene Vesten Ontwerpteam Ringpark Groene Vesten
Toekomstbeeld van de speelzone in Groenenhoek, een van de acht deelparken van Ringpark Groene Vesten

Het Ringpad slingert tussen de groene bermen langs de Edgar Tinelstraat, het bosje en de geluidsmuur, en daalt uiteindelijk af onder de Borsbeeksebrug.

Toekomstbeeld van Groenenhoek, een van de acht deelparken van Ringpark Groene Vesten Ontwerpteam Ringpark Groene Vesten
Toekomstbeeld van Groenenhoek, een van de acht deelparken van Ringpark Groene Vesten

Ontwerpplan van Groenenhoek, een van de acht deelparken van Ringpark Groene Vesten Ontwerpteam Ringpark Groene Vesten
Ontwerpplan van Groenenhoek, een van de acht deelparken van Ringpark Groene Vesten

Timing

De aanleg van Ringpark Groene Vesten gebeurt in fases. De deelparken Leeuwerikpark (inclusief fietsbrug over de Grotesteenweg), Polygoonpark, Bruggenpark en Groenenhoek zullen eerst worden aangelegd.

Dat is beslist op basis van de beschikbare middelen, huidige eigendomsstructuren en het lopende onderzoek onder leiding van intendant Alexander D’Hooghe naar de herinrichting van de Ring tussen knoop Oost en Ringpark Zuid.

In 2026 worden de vergunningsaanvraag en het aanbestedingsdossier voorbereid. Als alles vlot verloopt, zullen de werken starten eind 2027.

Gerelateerde projecten

Welkom!

Deze website maakt gebruik van cookies. Dat zijn kleine tekstbestanden die websites op je computer of mobiele toestel opslaan. Ze worden gebruikt om websites beter te laten functioneren, om de gebruikerservaring te verbeteren en/of om gericht advertenties te tonen.

Wanneer u onze website gebruikt, plaatsen wij de cookies die u terugvindt onder de tab 'cookie-instellingen' in de footer. Wilt u genieten van een optimale ervaring? Dan kan u best alle cookies inschakelen.

U kan uw persoonlijke voorkeuren instellen en zo bepalen welke informatie u met stad Antwerpen deelt. Houd er rekening mee dat bepaalde media enkel beschikbaar zijn indien u de cookies ervan aanvaardt. Deze website bewaart de door u ingestelde cookievoorkeuren. U kan ze altijd opnieuw aanpassen via 'cookie-instellingen' in de footer. Meer weten? Check de info over cookies in onze privacy- en gebruiksvoorwaarden.